Sober Living Prototypes

2024 // Multi-Family Residential // 4,800 sf per Residence

Carlsbad, New Mexico

Project Overview

The LifeHouse Sober Living Residences are a pair of purpose-built homes designed to support individuals in recovery through stable, dignified housing rooted in community. Developed as a repeatable prototype, the residences provide safe, structured living environments that emphasize shared space, personal privacy, and long-term durability within a residential neighborhood context.

Design Intent

The design objective was to create a residential environment that feels familiar, supportive, and non-institutional while meeting the operational needs of a sober living program. Rather than adapting existing housing stock, the project establishes a purpose-designed model that balances privacy and accountability, allowing residents to live independently within a structured community setting.

Each residence was carefully scaled and massed to integrate into the surrounding neighborhood, reinforcing the idea that recovery housing should feel like home — not a facility.

Architectural Approach

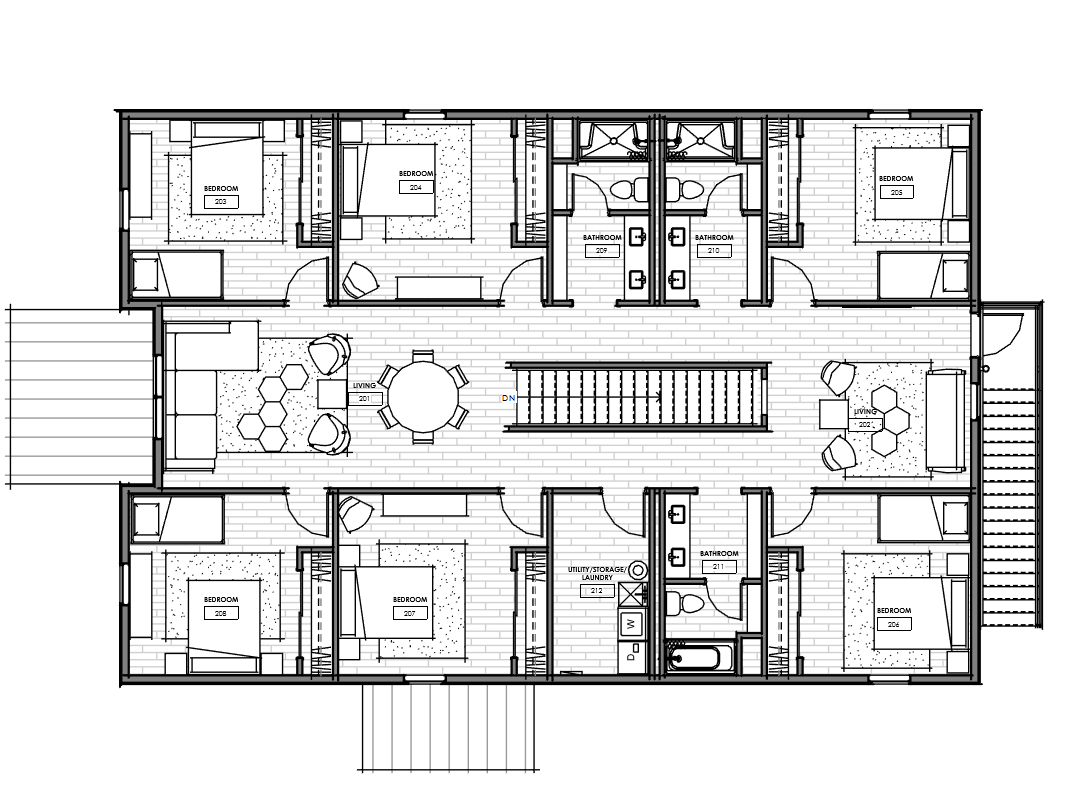
The two-story wood-framed residences are organized around shared communal spaces, including living areas, kitchens, and laundry rooms, with bedrooms distributed across both levels to support balanced occupancy and supervision. Clear circulation, durable finishes, and straightforward material assemblies were prioritized to ensure long-term performance and ease of maintenance.

The buildings were designed as prototypes, allowing the same architectural framework to be replicated or site-adapted for future locations while maintaining consistent program standards. This approach provides LifeHouse with a scalable housing solution that can grow alongside community needs.

Program Elements

  • 8 resident bedrooms per residence

  • 5 shared bathrooms

  • Communal living and dining areas

  • Shared kitchen and laundry facilities

  • On-site parking for residents and guests

  • Fully sprinklered residential construction

BSTK’s Role

BSTK Studio served as Architect of Record, providing full architectural design and construction documentation services for the LifeHouse Sober Living prototype. The project was developed in close coordination with LifeHouse leadership to ensure alignment with program goals, operational needs, and local zoning requirements.

The initial prototype design services were provided as a pro-bono community project, supporting LifeHouse’s mission to expand access to recovery-focused housing in southeastern New Mexico.

Project Metrics

  • Client: Carlsbad LifeHouse, Inc.

  • Location: 2406 & 2408 Tulip Street, Carlsbad, NM

  • Project Type: New Construction – Residential Prototype

  • Occupancy: R-3 Residential

  • Size: 4,800 SF per residence

  • Stories: 2

  • Fire Protection: NFPA 13-D Sprinkler System

Previous
Previous

Port Jefferson Remodel

Next
Next

Mail Service Center Renovation